第八豊号
第八豊号
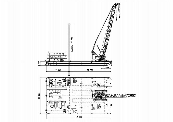
第八豊号 船舶仕様書
主要仕様
船体部
- 全長
- 50.0 m
- 幅
- 28.0 m
- 深さ
- 3.0 m
- 空荷吃水
- 1.2 m
- 満載吃水
- 2.5 m
- 排水トン数
- 1,800.0 ton
- 載荷重量
- 1,800.0 ton
- 載荷土量
- 0.0 m3
- 操船ウィンチ
- 10/5 t×15/24 m/min×4台
- スパットウィンチ
- 30/15 t×16/32 m/min×2台
クレーン仕様
- 最大巻上荷重
- 180.0 ton
- 作業半径
- 54.0 m
- 巻上速度
- 100.0 m/min
- 巻降速度
- 100.0 m/min
- ブーム起伏速度
- 22.0 m/min
- 旋回速度
- 1.3 rpm
- クレーンエンジン出力
- 345.0 ps
電源設備
- 主発電機
- 300 KVA×2台
- 主発電機内燃機関
- 366 ps×2台
- 補助発電機
- 60 KVA×1台
- 補助発電機内燃機関
- 81 ps×1台


